一体化气浮机价格
一、一体化气浮机简介:
一体化气浮机又名气浮过滤一体机,主要适用于处理废水经反应后絮体比重接近于水的各类废水,广泛应用于机械、化工、轻纺、交通、食品等行业,特别适用于油田钻井污水、油田回注水、炼油厂污水的处理。

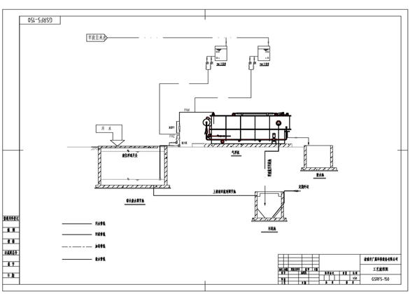
二、一体化气浮机工作原理:
污水中的污染物分为溶解性有机物和非溶解性物质(即SS),溶解性有机物在一定条件下,可以转化为非溶液解性物质,污水处理的方法之一就是加入混凝剂和絮凝剂使大部分溶解性有机物转达化为非溶解性物质,再将全部或大部分非溶液解性物质(即SS)去除以达到净化污水的目的,而去除SS的主要方法就是利用气浮的方法。
溶气罐产生溶气水,溶气水通过释放器减压释放到待处理的水中。溶解在水中的空气从水中释放出来,形成20-40um的微小细泡,微气泡同污水中的悬浮物结合,使悬浮物比重小于水,并逐渐浮到水面形成浮渣。水面上备有刮板系统,将浮渣刮入污泥池。清水从下部经溢流槽进入清水池。
气浮时向水中曝气,对去除水中的表面活性剂及臭味有明显的效果,同时由于曝气增加了水中的溶解氧,为后续处理提供了有利条件。

三、一体化气浮机注意事项及日常维护:
(1)清水泵、刮沫机要定期加油润滑。
(2)气浮池应视沉物多少,定期进行清洗。
(3)进入气浮机的污水必须加药,否则效果不理想。
(4)定期检查溶气罐上的安全阀是否工作可靠。
(5)要清洗水池内所有的赃物、杂物。
(6)对水泵等需要润滑部位进行加油润滑。
(7)调节加药装置到高状态使污水与悬浮物分离。

四、一体化气浮机产品特点 :
1、系统采用集成化组合方式,适用性广、性能稳定。
2、自动化程度高,操作简单,管理方便。
3、溶气效率高,处理效果稳定,根据需要,可调整溶气压力和溶气水回流比。
4、按不同的水质及工艺要求:可提供单溶气装置或双溶气装置。
5、采用可反冲释放器,提高溶气水的利用效率,同时保证设备工作稳定。

五、一体化气浮机应用领域:
1、分离地表水中细小悬浮物、藻类、油类等微聚体;
2、回收工业废水中有用物质等;
3、代替二沉池分离和浓缩水中污泥等悬浮物;
4、油田、煤矿、化工、塑料、纺织、印染、食品等行业。


返回首页
电话
产品中心